El trabajo salió de la necesidad de habilitar un
consultorio para psicología.
BITÁCORA PROYECTUAL
El propietario hizo algunas modificaciones en la vivienda y necesitaba
aprobarlo para poder empezar a trabajar.
Teniendo los planos originales de la vivienda hice un replanteo de la zona
que tenia modificaciones y rehice todos los planos originales incorporando las
modificaciones y añadiendo información.
Para poder habilitarlo por MR era necesario modificar el plano y acordamos
una propuesta.
Con todo el material listo, terminamos las primera etapa.
El trabajo quedó listo en 8 días
Este es el desarrollo:
Hablamos con Marcos el 23-05-17
Planos necesarios para habilitar
consultorio de psicología
Trabajo empezado el 24-05-17 a las 8:00
Trabajo terminado el 02-06-17
Trabajo terminado el 02-06-17
-relevamiento de los muros e instalaciones
nuevas
-comparación de planos viejos con
construcción actual
-presupuesto: $700 - hacer planos
actualizados e imprimir
Extras:
-Consejo de Arquitectos: preguntar los
requisitos en el colegio de psicólogos y ver si es necesario aprobar por
municipalidad.
-Colegio de Psicólogos: pliego de
requisitos. Es necesario que esté aprobado
Según "Reglamento General de
Construcciones" Art. 3.4.3
NO CUMPLE CON LOS
REQUISITOS DE DIMENSIONES E ILUMINACION MINIMOS PARA LOCAL DE PRIMERA
CATEGORIA- (consultorio)
Pasos primeros
-Copiar el plano original y hacer las
modificaciones existentes como proyecto nuevo.
-Presentar este plano en el colegio de
psicólogos.
Pasos segundos:
*como el plano tiene que estar aprobado por
MR, tiene que pasar por el consejo.
-Presentar el plano como Proyecto nuevo, al
relevamiento de todo lo nuevo, esté bien o no según el reglamento. --mi trabajo
haciendo el relevamiento es tomar lo existente--
Pasos terceros:
Para evitar hacer
1-presentación de relevamiento en MR
2-pedido de propuesta para ajustar vivienda
al reglamento
3-presentación de propuesta
Elijo hacer
3-presentacion de propuesta en Obras
Particulares hasta que esté correcta
4-presentacion en Municipalidad de
Resistencia y aprobación (debe estar firmada, costo adicional según el
profesional matriculado).
5-Presentación en Colegio de Psicólogos
6-Terminar de modificar la obra.
PARA
TERMINAR EL PROYECTO:
1- Relevar TODA la
vivienda (carpintería, iluminación, estructura, etc.) y actualizar el pliego.
2- Realizar una nueva
propuesta en caso de ser necesario (si las demás partes de la vivienda no
cumplen con el reglamento)
3- Realizar cómputo y
presupuesto y dirección de obra (adicional).
4-
Presentar propuesta con modificaciones
existentes y propuesta como proyecto en Obras Particulares hasta asegurar la
validez. Firmar nota petitoria.
5-
Firmar por profesional matriculado (adicional) y presentar pliegos en MR.
6-
Presentar en Colegio de Psicólogos y habilitar
el local.
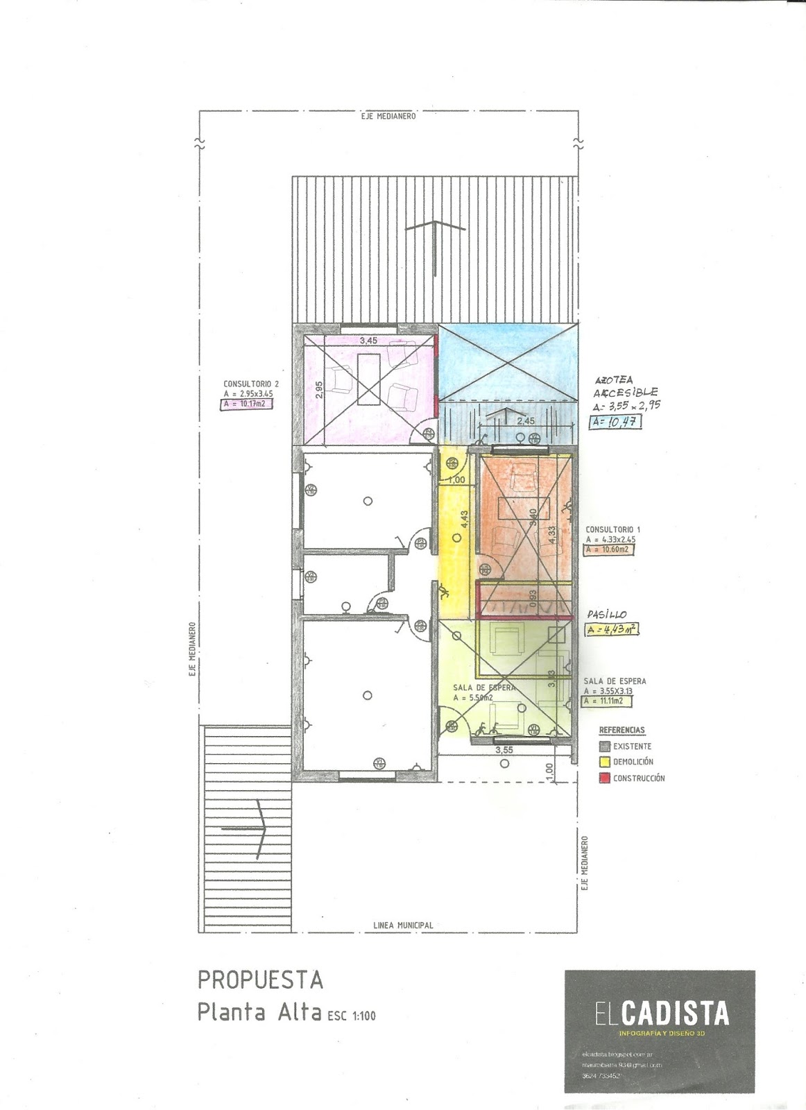
BENEFICIOS DE LA PROPUESTA
·
Cumple con las normativas necesarias para
ser aprobada por MR y Colegio de Psicólogos.
·
Se mejora la Iluminación y Ventilación
Natural en tres espacios fundamentales: Consultorio 1, Consultorio 2 y Sala
de Espera.
PROYECTADO
|
ANTES
|
AHORA
|
|
CONSULTORIO 1
|
ÁREA
|
5.88m²
|
10.60m²
|
VENTILACIÓN
|
-
|
1.50m²
|
|
CONSULTORIO 2
|
ÁREA
|
8.08m²
|
10.17m²
|
VENTILACIÓN
|
-
|
3.00m²
|
|
SALA DE ESPERA
|
ÁREA
|
5.50m²
|
11.11m²
|
VENTILACIÓN
|
2.25m²
|
2.25m²
|
|
PASILLO
|
ÁREA
|
6m²
|
4.43m²
|
VENTILACIÓN
|
-
|
-
|
|
SALA GRANDE/
AZOTEA ACCESIBLE
|
ÁREA
|
20.94m²
|
10.47m²
|
VENTILACIÓN
|
-
|
10.47m²
|
·
Se redujo la longitud del pasillo de 6m a
4.40m
·
Se conserva en el consultorio 1 la librería
de placa de yeso pero con una disposición que mejora la circulación y la
usabilidad.
·
Se reorientan las mismas puertas
instaladas de doble contacto
·
Se logra un patio (azotea accesible) para
permitir la iluminación y ventilación natural.
·
Se amplían los locales de permanencia
(Consultorio 1, Consultorio 2 y Sala de Espera) y se optimizan las
circulaciones dentro de estos.
·
Se reutiliza gran parte de la construcción
existente en placa de yeso y se reduce al mínimo la cantidad de construcción
nueva.
ELEMENTOS ENTREGADOS
1- Relevamiento actualizado
impreso en Plot.
·
(1)
Plano de plantas generales y de techos, cortes, fachadas y planillas
·
(2)
Plano de instalaciones y replanteo
·
(3)
Plano de estructura y carpintería
*Se
añadieron los datos relevados en Planta Alta de los consultorios.
*Se
añadieron cotas, descripciones e información en los tres planos.
*Los
planos No están en condiciones de ser
aprobados por municipalidad. Es necesario realizar un relevamiento general
de la vivienda y en caso de que se opte por la propuesta de proyecto,
incluirla.
2- Reglamentación y
normativas vigentes exigibles.
·
Requisitos
Colegio de Psicólogos de la Provincia del Chaco.
·
Requisitos
Ministerio de Salud – Ciudad Autónoma de Bs. As.
·
Reglamento
General de Construcciones – Municipalidad de Resistencia
·
Código
de Planeamiento Urbano – Ambiental – Ciudad de Resistencia
3- Estudios de
Ocupación del suelo (FOS y FOT) para los pliegos originales y la propuesta.
4- Propuesta
Proyectual de Refacción.
·
Cumple
con TODAS las normativas vigentes.
·
Planta
Alta estudiada con relevamiento actual.
·
Planta
Alta propuesta.
5- Documentos en PDF
·





Comentarios
Publicar un comentario